Your search results

Palazzo Corso Umberto I

€ 100.000
Corso Umberto I, ,
Aggiungi ai preferiti
vendita

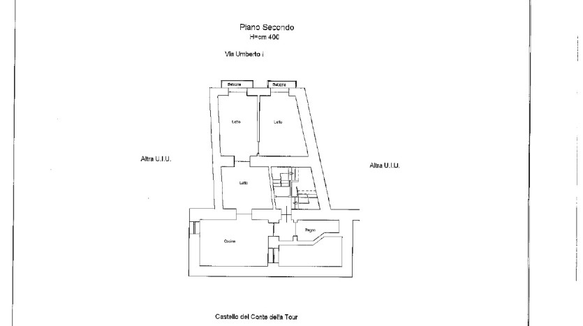
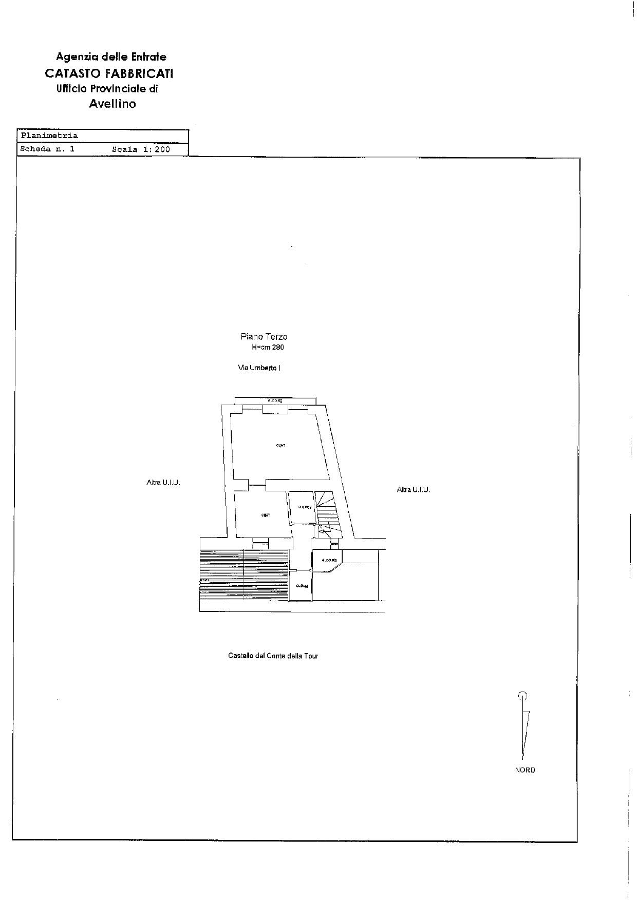
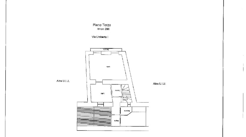
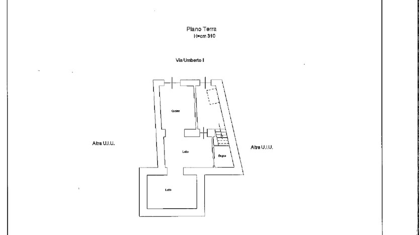
In centro storico ad Avellino, a Corso Umberto I, nelle immediate vicinane del Castello Longobardo, proponiamo in vendita intero stabile, disposto su più livelli ognuno di ca. 75 mq, oltre copertura.

 

Il fabbricato è cosi composto:

Piano terra, primo, secondo e terzo piano: appartamenti con destinazione abitativa; oltre cantina al Piano S1 e sottotetto.

 

La facciata esterna del fabbricato, come il suo interno sono da ristrutturare.

NON SI VENDONO SINGOLARMENTE.

 

Ottima soluzione come investimento, dove poter realizzare monolocali e/o bilocali grazie alla rarità di trovare un fabbricato in vendita per intero in una zona di pregio molto ambita come la sua ubicazione nei pressi del Conservatorio e del Teatro.

Indirizzo: Corso Umberto I
Comune:
Area:
State:
CAP: 83100
Nazione: Italy
Codice immobile: 16273
Prezzo: € 100.000
Dimensioni: 375 m2
Piano: su più livelli
Anno Costruzione: 1930